2 кімнатна укомплектована ЖК Водограй
•
•
•
•
$100 000
НОВОБУДОВА
ПРОДАЖ
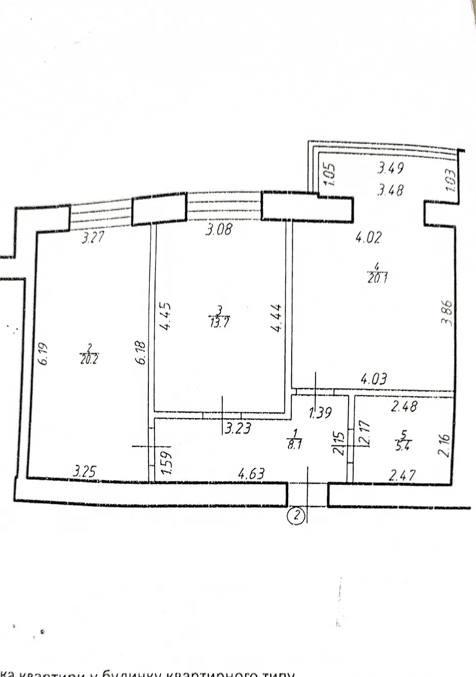
Продаж 2 кімнатної квартири в по вулиці Івасюка 21Г , квартира розміщена на комфортному 1 поверсі ( над комерцією ). Квартира повністю укомплектована , ВСЕ залишається.
К-сть кімнат
2
Площа
67.5м²
Площа кухні
23.5м²
Поверх
1/5
Стан
Ремонт
Район
Брати
Вулиця
Івасюка
Забудовник
Франківський Дім
ЖК
Водограй
Черга
–
Секція
–
Під'їзд
–
Документи
До 3 років
ID обʼєкту
7591
•
•
ЗВ'ЯЗОК З МЕНЕДЖЕРОМ
Олег Фейчук
+380 (66) 558 51 24
Підібрати нерухомість
Залишити заявку