Продаж таунхауса із ремонтом у котеджному містечку с Вовчинець
$215 000
КОТЕДЖ
ПРОДАЖ
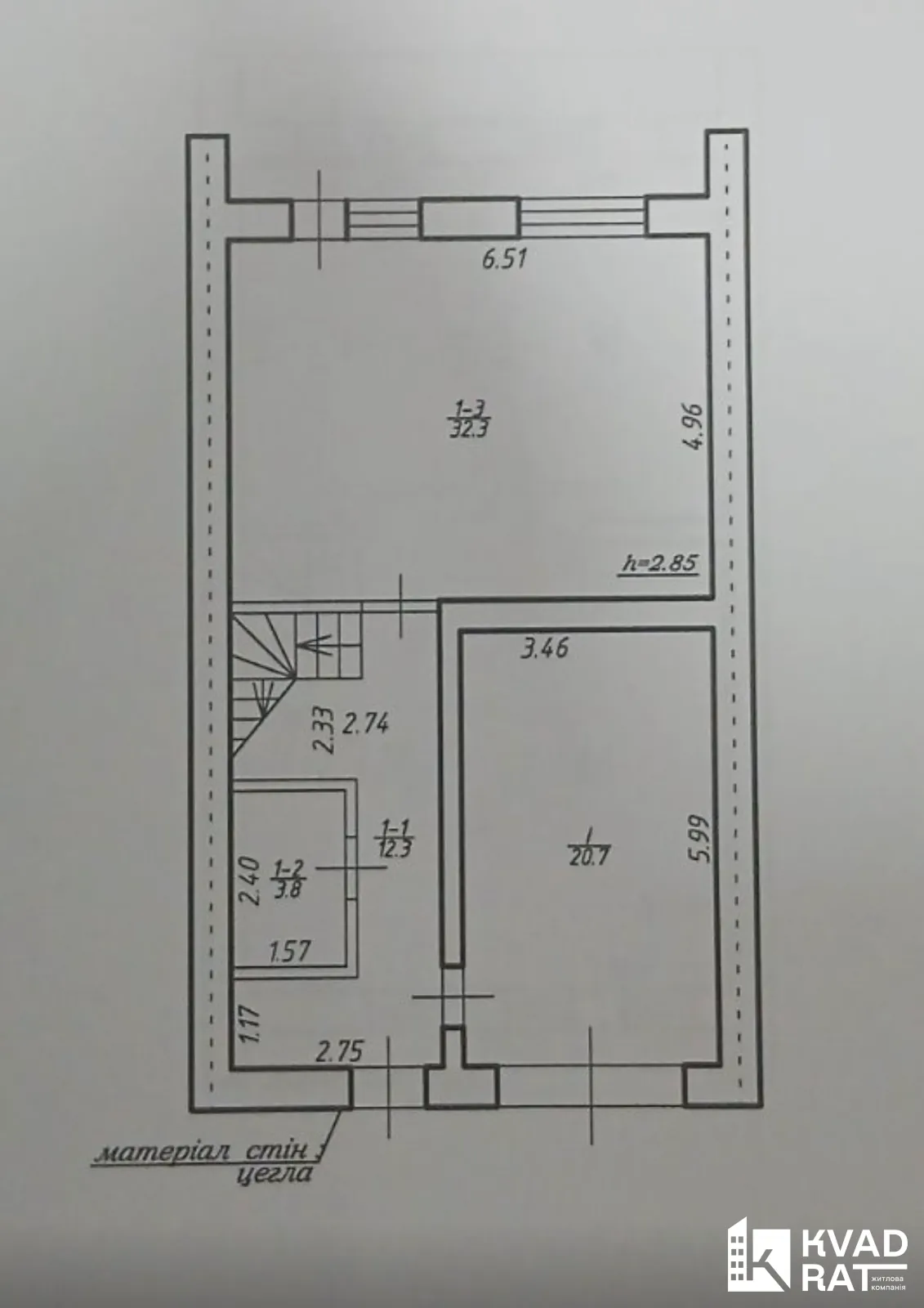
Продається сучасний таунхаус у селі Вовчинець, Івано-Франківський район, у котеджному містечку закритого типу з власною інфраструктурою та безпечною територією. Основні характеристики: Внутрішній таунхаус Площа будинку 133,5 м Ділянка 2,5 сотки (велике власне подвіря) Два повноцінні поверхи горище Вартість 215 000 $ Зручне та продумане планування: Перший поверх: Великий гараж Простора кухня-вітальня площею 32 м з виходом на подвіря Санвузол з душем Гардеробна Другий поверх: Три окремі кімнати Кожна кімната має вихід на відкритий балкон Простора ванна кімната площею 7,5 м з душем та дизайнерською ванною Третій рівень: Горище (можна використовувати як додатковий простір для зберігання) Дах утеплений Будівництво та фасад: Цегляне будівництво Утеплення пінопластом 10 см Фасад оздоблений декоративною плиткою Підсвітка фасаду Комунікації: Усі міські комунікації Центральна каналізація та водопостачання Світло 3 фази, 7 кВт Газове та твердопаливне опалення Альтернативне джерело енергії камін на дровах Ідеальний варіант для сімї, яка шукає комфортний будинок із власним подвірям у затишному та безпечному місці. Телефонуйте будинок вартий вашої уваги!
К-сть кімнат
3
Поверховість
2
Площа
133.5м²
Площа кухні
32.3м²
Ділянка
2.5 сотих
Стан
Ремонт
Район
Вовчинець
Вулиця
Потічна
Забудовник
БК BalKon Group
Комунікації
Газ, Електрика, Центральна каналізація, Центральний водопровід
Опалення
Газ
Утеплення даху
Мінеральна вата
Утеплення стін
Пінопласт 10 см
Матеріал стін
Цегла
Черга
Сходи
Документи
До 3 років
ID обʼєкту
5814
ЗВ'ЯЗОК З МЕНЕДЖЕРОМ
Вадим Міхалат
+380 (99) 189 61 34
Підібрати нерухомість